Stoaberg Lodge
STOABERG LODGE - Design trifft auf alpines Flair
Freuen Sie sich auf eine Auszeit inmitten vom Draußen.
Lodge Auszeit & Freiraum
Mit viel Liebe zum Detail haben wir bei der Ausstattung unserer beiden Lodges AUSZEIT & FREIRAUM besonders auf den Einsatz von hochwertigen Naturmaterialien geachtet um ein besonderes Wohlfühlklima und Wohnwohlgefühl zu schaffen. Es erwartet Sie natürlicher Luxus mit edlem Holz, wärmenden Textilien, Glas und Licht, Luft und Natur. Erleben Sie exklusive Aussichten aus den Panoramaglasfronten und genießen Sie die ruhige Lage und den freien Blick in die Bergwiesen.
NEU ab Sommer 2026 - Tiny Lodge NEST
Mit der Tiny Lodge NEST ergänzt ein ganz besonderer Rückzugsort unser Angebot. Ein liebevoll gestaltetes Gartenloft, vollständig aus Holz gebaut, das modernes Design mit wohltuender Wärme und der Nähe zur Natur verbindet. In wohltuender Klarheit, mit viel Gefühl für Raum und Materialien gestaltet, lädt das NEST zum Ankommen, Loslassen und Durchatmen ein. Licht, Holz und Ausblick schaffen eine Atmosphäre der Geborgenheit und Ruhe. Ein Ort, an dem Zeit keine Rolle spielt. Perfekt für Zweisamkeit, Solo-Abenteuer oder bewusste Auszeiten. Hier wird Minimalismus zum Luxus - willkommen in unserem NEST.
Im Garten der Stoaberg Lodge lädt ein Saunahäuschen alle Gäste zur gemeinsamen Nutzung ein. Ein stiller Ort zum Aufwärmen und Nachspüren. Damit jeder seine persönliche Ruhe genießen kann, können individuelle Saunazeiten reserviert werden.
Wenige Gehminuten entfernt erreichen Sie das Ortszentrum mit Lebensmittelmarkt und Restaurants. Entdecken Sie mit alle Sinne den nahe gelegenen Pillersee. In der Umgebung finden Sie im Sommer wie Winter zahlreiche Freizeitmöglichkeiten und Bergbahnen.
Gastgeberinformation
Inmitten sanfter Bergwiesen und umgeben von klarer Bergluft lädt die Stoaberg Lodge dazu ein, den Alltag hinter sich zu lassen. Bei uns, Daniela, Hannes und Julia Rettenwander, treffen moderne Architektur und gemütliche Details auf herzliche, authentische Gastfreundschaft. Ein Ort zum Ankommen, Durchatmen und Genießen – mitten im Pillerseetal.
Ausstattung
-
Kinder
- Baby-Wickelauflage
- Babywanne
- Gitterbett / Babybett
- Kinderhochstuhl
- Kinderspielplatz
-
Energieeinsparung
- Alle Fenster sind doppelt verglast
- Einsatz ausschließlich elektrischer Geräte mit hohem Energieeffizienz-Niveau
- Einsatz von Solaranlagen, Photovoltaik, Windenergie, Geothermie, Wärmepumpen etc.
- Energieeffiziente Bauweise / nachhaltige Bau- & Verbrauchsmaterialien
- Mindestens 80 % der Beleuchtung wird durch energieeffiziente LED-Lampen erzeugt
-
Fremdsprachen
- Deutsch
- Englisch
-
Zahlungsarten
- Barzahlung
- Vorauszahlung
- Überweisung
-
Einrichtungen Betrieb
- Brötchenservice
- E-Ladestation für Autos
- Eigener Garten
- Einstellplatz für Fahrräder
- Gartengrill
- Gartenmöbel
- Haustiere nicht erlaubt
- Internetbenutzung gebührenfrei
- Schuhtrockner
- Skiabstellraum
- Sonnenterrasse
- Trockner-Benutzung
- Waschmaschinenbenutzung mögl.
- WiFi
-
Abfallvermeidung & Mülltrennung
- Kein Einsatz von Plastik bei Strohhalmen, Bechern, Flaschen, Geschirr und -besteck, Rührstäbchen und Deko-Elementen
- Keine Plastikgebinde für Shampoo, Duschgel, angebotene Toilette-Artikel
- Mülltrennung / Recyclingtonnen
- Vermeidung von Einwegverpackungen
-
Eignung
- Nichtraucher
-
Mobilität
- Fahrradparkplätze
- Lademöglichkeiten für Elektrofahrzeuge
-
Wassereinsparung
- Ausschließliche Verwendung von wassersparenden Armaturen (z.B. intelligente Duschen, Duschköpfe mit geringem Durchfluss)
- Gäste können Handtücher mehrmals verwenden
-
Wellness
- Sauna
-
Lage
- Ruhige Lage
- Wiesenlage
-
Konditionen
Brötchenservice, gratis WLAN, gratis Parkplätze, E-Ladestation für Elektroautos, Skiraum und Bike-Aufbewahrung, Schuhtrockner für Ski- und Wanderschuhe, Waschmaschine und Wäschetrockner, voll ausgestattete Küche.
Saunabenützung gestaffelt nach Aufenthaltsdauer im Preis inkludiert, zusätzliche Tage für 13 Euro/Tag zubuchbar (1x bis 4 N., 2x 5-6 N., 3x 7-9 N., 4x 10-13 N., 5x ab 14 N.). Nicht genutzte Saunatage verfallen und werden nicht abgelöst.
Kontakt & Anreise
Stoaberg Lodge
6393 St. Ulrich am Pillersee AT
Anreise
Anreise: ab ca. 15:00 / Abreise: bis 09:30 Uhr
Von St.Johann i.T. kommend bei Fieberbrunn, links Richtung St. Jakob in Haus/St. Ulrich am Pillersee abbiegen. Beim Restaurant "Seewirt" einbiegen und den Hinweisschildern Richtung Wieben folgen.
Trust-You-Bewertung
Fotos
Appartements & Preise
Zimmer-Übersicht
-
ab 182,00 €
Größe 80 m² Belegung 1 - 5 Erwachsene , 0 - 4 Kinder Zimmer 3 Schlafzimmer 2 Zimmerdetails
In der Lodge "FREIRAUM" erwartet Sie natürlicher Luxus mit edlem Holz, wärmenden Textilien, Glas, Licht und Natur. Erleben Sie exklusive Aussichten aus den Panoramaglasfronten und genießen Sie die ruhige Lage und den freien Blick in die Bergwiesen.
Ausstattung:
lichtdurchfluteter Wohnbereich
vollausgestattete Küche,
2 Schlafzimmer mit Boxspringbetten
2 Badezimmer mit Dusche/WC en suite,
Saunahaus im Garten,
überdachte Holzterrasse mit Sitzmöbeln,
3 Smart TVs, gratis WLAN
1 Zustellbett möglichAusstattung Zimmer/Appartement
Tisch- und Küchenwäsche, Fußende der Betten offen, Nichtraucher Zimmer/App./Whg., Toilettenartikel, Garten, Separate Schlafzimmer: 2, Gartenmöbel, Begehbarer Schrank, Toaster, Elektroherd, Waschmaschine, Geschirr vorhanden, Küche, Haustiere nicht erlaubt, Wasserkocher, Kühlschrank, Gefriermöglichkeit, Ruhiges Zimmer/Appartement, Wickelauflage, Haarföhn, Geschirrspülmaschine, WiFi, Fernseher, Trockner, Grundausstattung (Handtücher, Bettwäsche, Seife, Toilettenpapier), Backofen, Wohn-/Schlafräume getrennt, Terrasse, Luxus-Möblierung, Satellitenfernsehen, Bettwäsche vorhanden, Wohnküche, Dunstabzug, Sauna, Kaffee-Maschine, Handtücher vorhanden, Decken, Waschmaschinenbenutzung
Betten Verteilung
Getrennte Betten möglich, Anzahl Doppelbett/en: 2, Zustellbett, Sofa
Sanitäre Ausstattung
Dusche, WC, Dusche, Toiletten Anzahl: 2, Waschtisch, Badezimmer Anzahl: 2
Lage/Blick Zimmer/Appartement
Erdgeschoß / Parterre
-
ab 182,00 €
Größe 80 m² Belegung 1 - 6 Erwachsene , 0 - 5 Kinder Zimmer 3 Schlafzimmer 2 Zimmerdetails
In der Lodge "AUSZEIT" erwartet Sie natürlicher Luxus mit edlem Holz, wärmenden Textilien, Glas, Licht und Natur. Erleben Sie exklusive Aussichten aus den Panoramaglasfronten und genießen Sie die ruhige Lage und den freien Blick in die Bergwiesen.
Ausstattung:
vollausgestatte Küche,
großzügiger Wohnbereich,
2 Schlafzimmer mit Boxspringbetten,
in 1 Schlafzimmer Schlafkoje für 2 Personen,
2 Badezimmer mit Dusche/WC en suite,
Saunahaus im Garten,
überdachte Terrasse mit Sitzmöbeln
3 Smart TVsAusstattung Zimmer/Appartement
Luxus-Möblierung, Garten, Wasserkocher, Ruhiges Zimmer/Appartement, Wickelauflage, Sitzgruppe, Haustiere nicht erlaubt, Begehbarer Schrank, Gartenmöbel, Nichtraucher Zimmer/App./Whg., Terrasse, Elektroherd, Geschirr vorhanden, Fußende der Betten offen, Dunstabzug, Küche, Gefriermöglichkeit, Bettwäsche vorhanden, Internetanschlussmöglichkeit, Backofen, Wohn-/Schlafräume getrennt, Küchengeräte, Satellitenfernsehen, Sauna, Wohnküche, Kühlschrank, WiFi, Kaffee-Maschine, Separate Schlafzimmer: 2, Decken, Geschirrspülmaschine, Tisch- und Küchenwäsche, Handtücher vorhanden, Abstellraum, Waschmaschinenbenutzung, Grundausstattung (Handtücher, Bettwäsche, Seife, Toilettenpapier), Toaster, Vorraum, Fernseher
Sanitäre Ausstattung
Badezimmer Anzahl: 2, Toiletten Anzahl: 2, Dusche, WC
Betten Verteilung
Anzahl Doppelbett/en: 2, Anzahl Stockbett/en: 2, Getrennte Betten möglich
Lage/Blick Zimmer/Appartement
Gartenblick, Erdgeschoß / Parterre
-
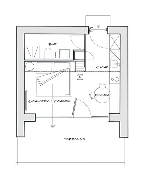
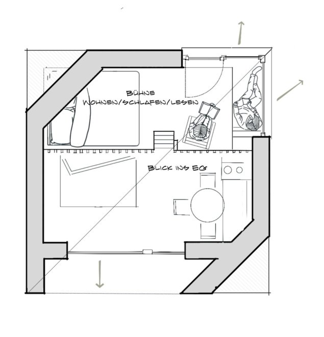
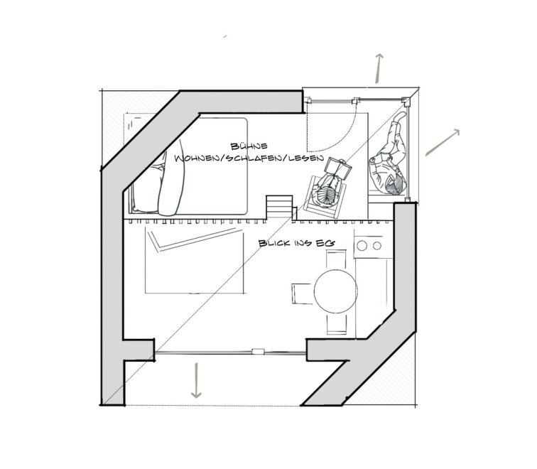
ab 169,00 €
Größe 30 m² Belegung 1 - 2 Erwachsene , 0 - 1 Kinder Zimmer 2 Schlafzimmer 1 Zimmerdetails
NEU ab Sommer 2026 - Tiny Lodge NEST - ein liebevoll gestaltetes Gartenloft, vollständig aus Holz gebaut, das modernes Design mit wohltuender Wärme und der Nähe zur Natur verbindet.
Freuen Sie sich auf eine voll ausgestattete Küche, einen gemütlichen Essbereich, einen Schlafplatz der zum Träumen einlädt und einen erhöhten Wohnbereich mit Aussicht (über Leiter erreichbar).
Perfekt für Zweisamkeit, Solo-Abenteuer oder einfach zum Durchatmen (+1 Kind auf Anfrage).
Hier wird Minimalismus zum Luxus!Ausstattung Zimmer/Appartement
Luxus-Möblierung, Gartenmöbel, Haustiere nicht erlaubt, Heizung, Rauchmelder, Sauna, Haarföhn, Ruhiges Zimmer/Appartement, Nichtraucher Zimmer/App./Whg., Wasserkocher, Wohn-/Schlafräume kombiniert, Geschirrspülmaschine, Kühlschrank, Backofen, Toaster, Grundausstattung (Handtücher, Bettwäsche, Seife, Toilettenpapier), Terrasse, Elektroherd, Garten, Waschmaschinenbenutzung, Küchenzeile, Fußende der Betten offen, Fernseher, Gefriermöglichkeit, Decken, Kaffee-Maschine, Tisch- und Küchenwäsche, Küche, Privater Eingang, Geschirr vorhanden, Holz- oder Parkettboden, Handtücher vorhanden, Bettwäsche vorhanden, WiFi
Sanitäre Ausstattung
Dusche, Badezimmer Anzahl: 1, Waschtisch, Fließendes Kalt- und Warmwasser, Dusche, WC, Toiletten Anzahl: 1
Lage/Blick Zimmer/Appartement
Gartenblick, Erdgeschoß / Parterre
Betten Verteilung
Anzahl Doppelbett/en: 1
-
Sicher und schnell
-
Persönliche Beratung
-
Komplette Preistransparenz
Brauchen Sie Hilfe?
Montag bis Freitag 9-12 & 13-17 Uhr
Samstag & Sonntag geschlossen
Foyer täglich 8-21 Uhr